回農村建房,化糞池應該怎么建?做化糞池需要
日期:2019-07-26 19:11:33 / 人氣:1663 / 來源:本站
很多朋友們都在問,自己建房,生活污水怎么辦?如果建化糞池,大概要多少錢?
如果像農村過去弄一個臭烘烘的糞坑肯定是不行的,新建的房子弄一個糞坑誰都會不舒服。排水管道要設計好,要合理方便。大家一起來看看我們農村的化糞池是怎么做的吧!

1一、農村化糞池該怎么設計?
農村家用化糞池一般采用的是三格式化糞池,簡單的說,三格化糞池就是三個功能不同的密封池相互連通而組成的化糞池。

1、工作原理:
①污水進入一號池進行初級腐化處理;
②然后流入二號池進行深度腐化處理;
③再流入三號池,進行澄清;
④*后將處理過的污水排出池外或取用用于澆灌農田。
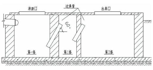
2、三格化糞池如何設計?(含結構圖)
如圖所示:

①進水口:化糞池一般連通廁所,房屋種形成的糞水由此進入化糞池進行處理;該管道也可以采用U型管或水封彎管等,防止池中臭氣、糞水回流;
②清渣口:用于打開一號池,清理一號池中無法排出的垃圾、沉淀等;
③一號池:**個池子,進行初步腐化處理;
④過糞管:當一號池、二號池中污水進行處理后,可進入下一個池子進一步處理;該管道一般要傾斜60度或采用U型管等,以避免池中臭氣、污水回流;
⑤二號池:第二個池子,進行深度腐化處理;
⑥出糞口:可打開三號池,處理已深度腐化后的糞便,可用于澆灌農作物;
⑦三號池:第三個池子,用于污水澄清處理;
⑧出水管:可選擇建造出水管,將澄清后的污水排出化糞池。部分化糞池沒有出水口。
提醒:在建造化糞池時還要注意預留通風口,避免池內沼氣積累,發生爆炸。化糞池建造應根據居民用水量來建造,如用水量超過3~4L的話,那就得建造多個池子了。
3、三格化糞池具體尺寸:
這里提供一個三格化糞池建造尺寸作為參考,具體尺寸以實際使用尺寸為準:
進糞管:塑料、鑄鐵、水泥管均可,內壁光滑、防止結糞、內徑為10cm,長度為30-50cm。過糞管:以塑料管為好,直徑為10-15cm,1-2池間的過糞管長約70-75cm,2-3池間的過糞管長約50-55Cm。
三格池:用磚砌水泥粉壁面或水泥現澆,預制均可,以“目”字形為主要類型,若受地形限制,“品”字形、“丁”個型擺都也可。容積達到貯糞2個月為宜。三格池有效深度應不少于1 cm ,1至3格容積比例一般為2:1:3。
蓋板:可自行預制,要做到既密閉,又便于清渣和取糞。
作者:admin
推薦內容 Recommended
- 管道驗收的10大標準05-04
- HDPE雙壁纏繞管如何進行連接05-04
- 塑料檢查井回填規定04-17
- 塑料檢查井井筒安裝常見問題04-17
- 塑料檢查井的全面介紹04-17
- 城市發展和塑料檢查井之間的關系04-06
相關內容 Related
- 管道驗收的10大標準05-04
- HDPE雙壁纏繞管如何進行連接05-04
- 塑料檢查井回填規定04-17
- 塑料檢查井井筒安裝常見問題04-17
- 塑料檢查井的全面介紹04-17
- 城市發展和塑料檢查井之間的關系04-06



